


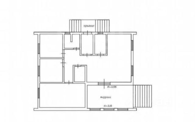
Арт. 133815458 Дом, в который влюбляешься с первого взгляда. Представляем вам одноэтажный загородный дом 239,3 кв. м на участке 9,58 сотки в камерном посёлке "Лесная сказка", в 35 км от МКАД по Ярославскому шоссе. Это готовое пространство для жизни в окружении леса и природных источников, где хочется замедлиться, выдохнуть и куда хочется возвращаться каждый день. Дом построен в 2022 году по индивидуальному проекту, в котором эстетичная архитектура сочетается с премиальными материалами. Конструктив: газобетонные блоки D500, монолитная фундаментная плита, вентилируемая кровля из металлочерепицы. В отделке фасада использованы планкен из лиственницы, искусственный кирпич и камень. Внутри выполнена качественная отделка под ключ в современном стиле. Дом полностью меблирован и оснащён бытовой техникой Liebherr, ASKO и Bosch. Светлая цветовая гамма, потолки высотой от 3,5 до 5 метров и панорамное остекление в гостиной формируют ощущение простора и света. В отделке использованы инженерная доска, итальянский керамогранит, установлены двери Portalle. Для комфортного проживания в доме предусмотрены сплит-система кондиционирования, водяные тёплые полы, напольные и настенные радиаторы Arbonia, а также продуманное световое оформление. Дом подключён ко всем центральным коммуникациям: магистральный газ, электричество 10 кВт с возможностью увеличения мощности, водопровод и канализация. Участок полностью благоустроен: выполнен профессиональный дренаж, дорожки вымощены тротуарной плиткой, по периметру установлен капитальный забор на ленточном фундаменте, въезд оформлен автоматическими воротами. Отдельная зона отдыха с гриль-очагом становится естественным продолжением дома — местом для камерных вечеров, неспешных завтраков и встреч в кругу близких. Это предложение для тех, кто выбирает не просто дом, а определённый образ жизни — спокойный, красивый, приватный и по-настоящему достойный. Приглашаем вас на просмотр, чтобы лично оценить качество дома, его атмосферу и расположение. Планировка: прихожая и гардеробная, холл, кухня - столовая, просторная гостиная с выходом на террасу, гостевая спальня (кабинет/спортзал), детская спальня с гардеробной, мастер-спальня с ванной и гардеробной, санузел с душевой, постирочная, котельная, тёплый гараж на одно машино-место. КП "Лесная сказка" расположен в окружение природного леса и пяти святейших источников, всего в 35 км от МКАД по Ярославскому шоссе. Территория поселка составляет 10 гектар для 77 домовладений, полностью огорожена по периметру, подъездные пути - асфальтированы, въезд осуществляется строго по пропускной системе. В поселке действует своя управляющая компания, которая следит за порядком, а также предоставляет услуги профессионального ухода за участками и клининг по уборке домов. К границам участков, подведены все центральные коммуникации (газоснабжение, электричество, водопровод и канализация). КП Лесная Сказка подходит как для постоянного, так и сезонного проживания. На территории поселка расположены детские игровые зоны и спортивные площадки, ресторан и водоем, где можно купаться и ловить рыбу. Поблизости расположены рестораны и продуктовые магазины. Вблизи поселка историческое место "Усадьбы Мураново им.Ф.И.Тютчева", Родник Сергия Радонежского (с серебряной водой), Святой источник Казанской иконы Божией Матери, Часовня и святой источник Даниила Московского, Часовня Михаила Архангела и место для отдыха и пикников Мураново "Три холма". Поистине магическое место, где вы ощутите себя комфортно и безопасно насладитесь тишиной и уединением за пределами мегаполиса.






















































































