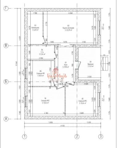
Номер лота: нп-0021217. 3-х уровневый, кирпичный жилой дом-дуплекс 240 кв.м. Cтрого-охраняемый кп Пушкинский лес. Участок 7 соток. Внутри сделаны межкомнатные перегородки и бетонная лестница, снаружи утеплитель+ фасадная штукатурка. Кровля-натуральная керамическая немецкая черепица. Материал стен-керамические блоки Поротерм. Все перекрытия между уровней- бетонные плиты с высотой этажей 3,20 Цокольный этаж с высокими потолками-3,20, во весь дом. В цокольный этаж заведены коммуникации: канализация, водоснабжение и электричество. Магистральный газ находится на участке. Планировка дома: 1этаж-санузел, кабинет, гардеробная, кухня-гостиная с выходом на террасу. 2этаж- мастер спальня со своим санузлом, гардеробная и 2 спальни с гардеробными, санузел общий, выход на лоджию. Участок частично с лесными деревьями, установлена дренажная система. Окружение кп Пушкинский лес идеально подходит для прогулок на природе. Магазин Продукты, детская и спортивная площадки Лыжные трассы зимой и пешие маршруты по собственной территории в 120Га и по лесному массиву в любое время года. От шоссе к коттеджному посёлку ведёт асфальтовая дорога через живописный лес. Коттеджный посёлок расположен в окружении гослесфонда и внутри первозданных лесов, вся социальная и развлекательная инфраструктура в 5минутах на автомобиле. Помощь в ипотеке. Все документы в наличии.










































































