152 539 ₽/м²
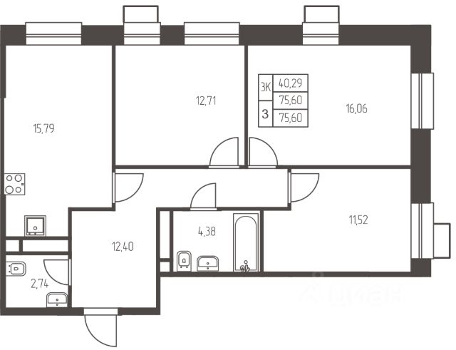
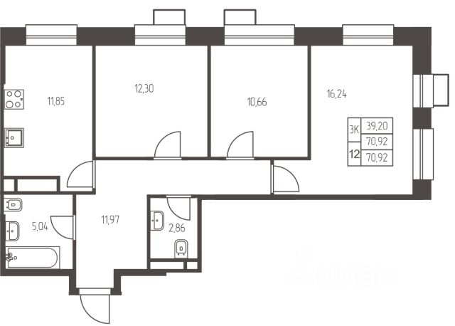
Продаётся 3-комнатная квартира в строящемся доме (Секция 1), срок сдачи: IV-кв. 2026, общей площадью 56.45 кв.м., на 4 этаже. Жилой комплекс "Западная Ивантеевка" в г. Ивантеевка - проект от ГК "Профи-Инвест", являющийся новым этапом в рамках комплексного развития территории города Ивантеевки, первая очередь строительства которого будет расположена в зелёной зоне города на площади в 3 Га всего в двух километрах от скоростного Ярославского шоссе. Концепцией ЖК предусмотрено наличие квартир с эргономичными планировками и отделкой Whitebox площадью от 29 до 98 м. Архитектурный облик, разработанный по индивидуальному проекту, сделает ЖК одной из визитных карточек города, а наличие крытого паркинга на его территории позволит собственникам жить с максимальным комфортом. Продается 3-комнатная квартира до 18 млн. рублей в Ивантеевке.































































































