


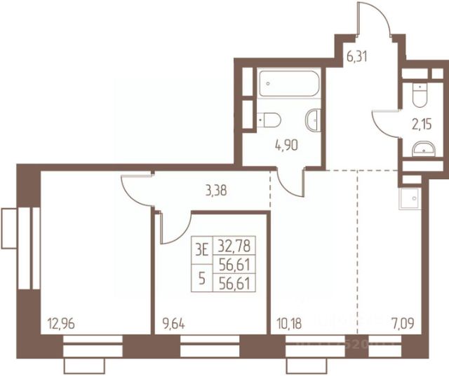
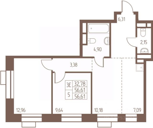
178 420 ₽/м²
Продается трехкомнатная квартира 784 в новостройке ЖК "Западная Ивантеевка" по адресу Московская область, Ивантеевка городской округ, Ивантеевка, ул. Первомайская, 1 очередь. Общая площадь квартиры - 53.60 кв. м., этаж 14 из 24, секция 4. Тип проекта, по которому построен дом - монолит, компания-застройщик - Профи-Инвест, ООО СЗ Профи-Первомайская. Стоимость квартиры - 9563320 Р. Срок сдачи - 4 квартал 2026. Более подробная информация по телефону.












































































































































































